Loading...

Mandre

Mandre – zweigeschossige Wohnung mit Garten – ERSTE REIHE

635.000 €

Mandre – zweigeschossige Wohnung mit Garten – ERSTE REIHE ERSTE REIHE ZUM MEER – EXKLUSIVER NEUBAU MIT AUFZUG – DOPPELSTOCKWOHNUNG S1

Im Angebot ist eine doppelstöckige Wohnung S1 in einem exklusiven Neubau in erster Meereslinie in Mandrama, gelegen in einem modernen Gebäude mit Aufzug, konzipiert für hohen Wohnkomfort und langfristige Wohnqualität.

Das Projekt besticht durch zeitgenössische Architektur, erstklassige Ausführung und eine außergewöhnliche Lage direkt am Meer. Große Glasfronten mit hochschiebbaren ALU-Fenstern sorgen für reichlich natürliches Licht und angenehmes Wohnen das ganze Jahr über, während Fußbodenheizung und Klimaanlage zu einem hohen Wohnstandard beitragen.

Geplantes Fertigstellungsdatum: Sommer 2026

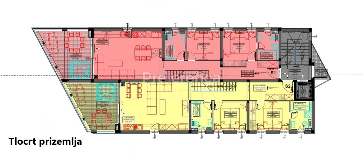
GRUNDRISS – DOPPELSTOCKWOHNUNG

Die Wohnung ist auf zwei Etagen verteilt, mit klarer Raumaufteilung, die mehr Privatsphäre und Funktionalität ermöglicht.

UNTERGESCHOSS (SOUTERRAIN)

- Eingangsbereich mit Treppe
- Abstellraum
- Badezimmer
- zwei Schlafzimmer

Ruhigerer Teil der Wohnung, geeignet zum Entspannen oder für Gäste.

OBERGESCHOSS (ERDGESCHOSS)

- Eingangsbereich mit Treppe
- zwei Schlafzimmer
- zwei Badezimmer
- großzügiges Wohnzimmer mit Küche und Essbereich
- Zugang zur Terrasse und zum Garten

Hauptwohnbereich mit Fokus auf Offenheit und Licht.

Die Wohnung verfügt über zwei Eingänge auf zwei Etagen – vom Untergeschoss und Erdgeschoss, was eine flexible Nutzung der Räume und einfachere Zonentrennung ermöglicht.

Zur Wohnung gehören zwei Parkplätze und ein privater Garten.

REC ID: 1276157

Merkmale

  • 155 m2
  • 3 Badezimmer
  • 7 Zimmer
  • Erste Reihe am Meer

Agentur

Agenturlogo

RealEstate Novalja

Makler

Zorica Tamarut

Mobil: 0958054460

Agencija logo
+
=
REC Kuće Biz
Dogma LUXURY ESCAPE
Bonum Real Estate Croatia
Opatia Riviera Real Estate by SmartInvest
Terra Dalmatica Real Estate
IMMO - real estate agency Split
Kaiser Immobilien Opatija
Search for you