Loading...

Brodarica

Brodarica – Neubau zweite Reihe vom Meer – Wohnung mit Terrasse

505.000 €

Brodarica – Neubau zweite Reihe vom Meer – Wohnung mit Terrasse Zum Verkauf steht eine moderne Wohnung im Erdgeschoss eines Neubaus, gelegen in zweiter Reihe vom Meer, in einer äußerst gefragten Lage in Brodarica bei Šibenik. Die Wohnung wurde funktional geplant, mit Schwerpunkt auf Wohnkomfort und optimaler Raumnutzung.

Die Wohnung besteht aus einem Eingangsbereich, Flur, zwei Schlafzimmern, einem Badezimmer, einem zusätzlichen WC sowie einem großzügigen Wohnzimmer mit Küche und Essbereich. Vom Wohnbereich aus besteht Zugang zu einer Terrasse, die einen angenehmen Aufenthalt im Freien ermöglicht.

Das Wohnzimmer mit Küche mit einer Fläche von ca. 25,45 m² bildet den zentralen Teil der Wohnung, während die Schlafzimmer getrennt sind und die notwendige Privatsphäre bieten. Die Raumaufteilung trennt klar den Wohn- und Schlafbereich, was zusätzlich zur Wohnqualität beiträgt.

Die Wohnung befindet sich im Erdgeschoss, was einen einfachen Zugang und zusätzliche Praktikabilität im Alltag ermöglicht.

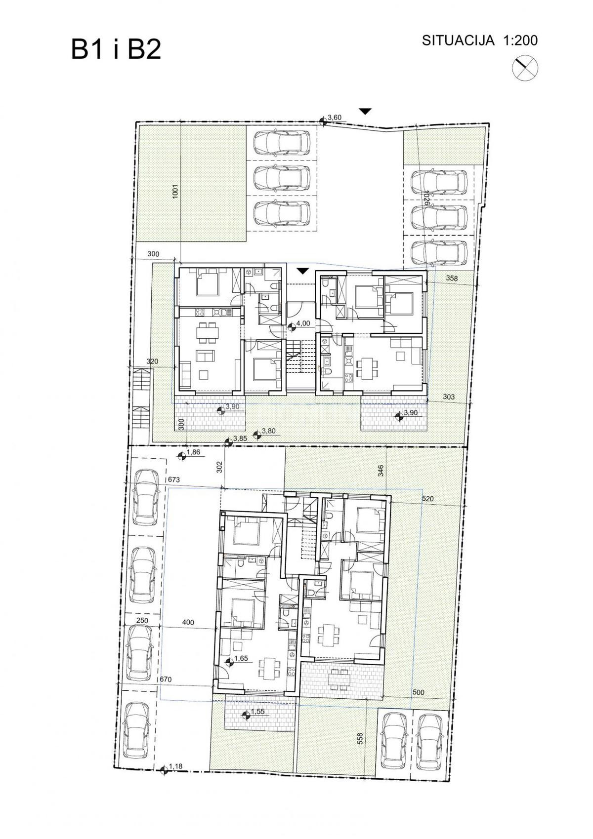
Das Gebäude ist Teil eines Projekts mit zwei modernen Wohngebäuden (B1 und B2), die hintereinander angeordnet sind, wobei sich dieses Gebäude in der zweiten Reihe vom Meer befindet. Das Projekt zeichnet sich durch moderne Architektur, hochwertige Bauweise und eine sorgfältig geplante Raumaufteilung aus. Jedes Gebäude umfasst insgesamt sechs Wohneinheiten, verteilt auf Erdgeschoss und zwei Obergeschosse.

Laut Lageplan verfügt das Gebäude B2 über gesicherten Zugang, Parkplätze und gestaltete Grünflächen, was die Wohnqualität zusätzlich erhöht.

Brodarica ist eine ruhige und gepflegte Küstensiedlung, nur wenige Autominuten von Šibenik entfernt. Sie ist bekannt für ihre schönen Strände, das klare Meer und den entspannten Lebensstil, und alle notwendigen Einrichtungen für ein angenehmes ganzjähriges Wohnen befinden sich in unmittelbarer Nähe. Diese Lage stellt eine ausgezeichnete Wahl zum Wohnen, für den Urlaub oder als sichere Investition in den Tourismus dar.

REC ID: 1285233

Merkmale

  • 81 m2
  • 2 Badezimmer
  • 3 Zimmer
  • 30 m vom Meer
  • Erste Reihe am Meer

Agentur

Agenturlogo

Bonum nekretnine d.o.o.

Makler

Tomislav Drežnjak

Mobil: 095/7505763

Agencija logo
+
=
REC Kuće Biz
Dogma LUXURY ESCAPE
Bonum Real Estate Croatia
Opatia Riviera Real Estate by SmartInvest
Terra Dalmatica Real Estate
IMMO - real estate agency Split
Kaiser Immobilien Opatija
Search for you