Loading...

Svetvinčenat

Baugrundstück 680 m² mit rechtskräftiger Genehmigung, Svetvinčenat

143.000 €

Baugrundstück 680 m² mit rechtskräftiger Genehmigung, Svetvinčenat Zu verkaufen ist ein Baugrundstück mit einer Fläche von 680 m², gelegen in einer ruhigen Siedlung der Gemeinde Svetvinčenat, angrenzend an eine grüne Zone, die Privatsphäre und eine natürliche Umgebung gewährleistet.

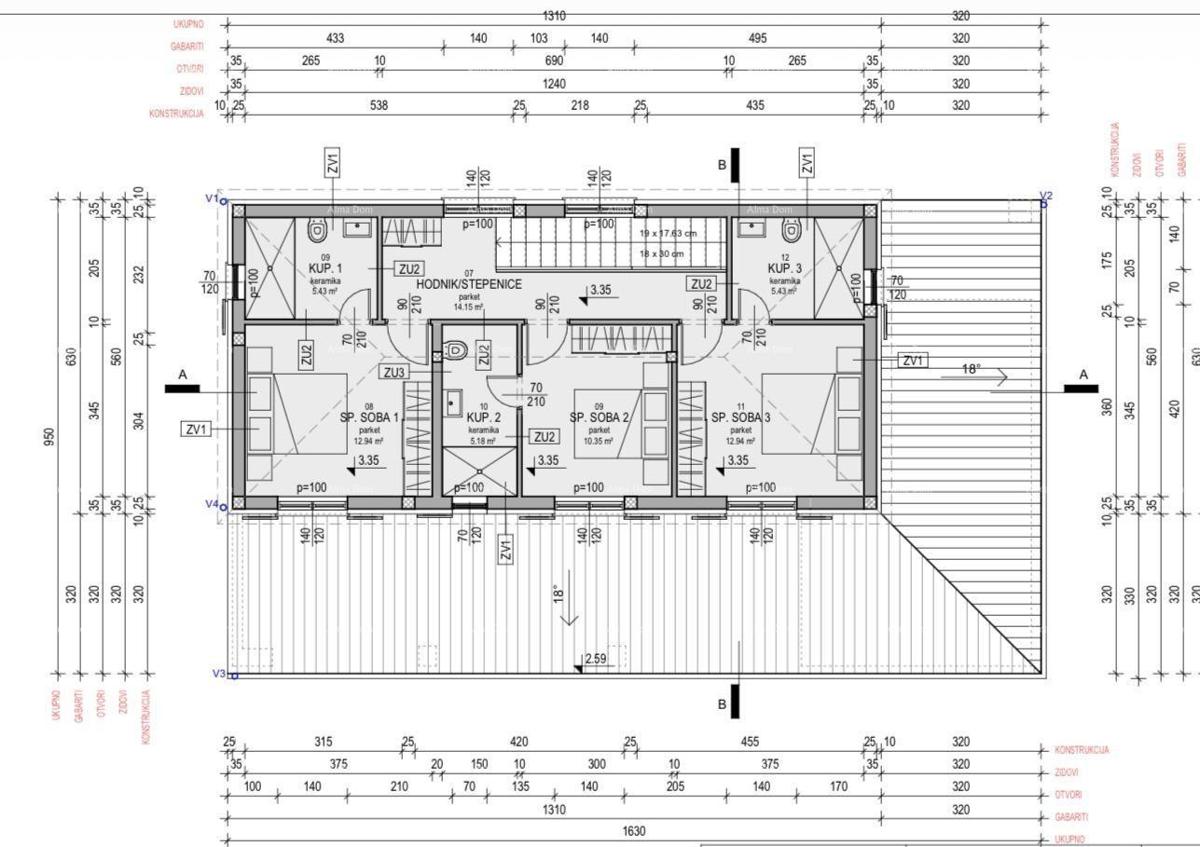
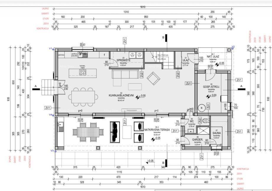
Das Grundstück verfügt über eine rechtskräftige Baugenehmigung für den Bau eines Einfamilienhauses mit Pool, insgesamt 192 m² groß.

Das Projekt umfasst:

3 Schlafzimmer im Obergeschoss
modernes Einfamilienhaus mit Pool
funktionale und zeitgemäße Raumaufteilung

Eine ausgezeichnete Gelegenheit, ein Einfamilienhaus oder ein Ferienhaus in einer ruhigen istrischen Umgebung zu bauen.

Für weitere Informationen kontaktieren Sie bitte:

Azra
+385 91 611 5706
+385 98 420 885
azra@almadominvest.com

REC ID: 1285690

Merkmale

  • 680 m2

Agentur

Agenturlogo

Alma Dom - Real Estate

Makler

Almasa Valjevac

Mobil: +385 91 6115706 +38598420885 +385991962863

Agencija logo
+
=
REC Kuće Biz
Dogma LUXURY ESCAPE
Bonum Real Estate Croatia
Opatia Riviera Real Estate by SmartInvest
Terra Dalmatica Real Estate
IMMO - real estate agency Split
Kaiser Immobilien Opatija
Search for you